продаж
Стоматологическая клиника Аркадия ремонт оборудование
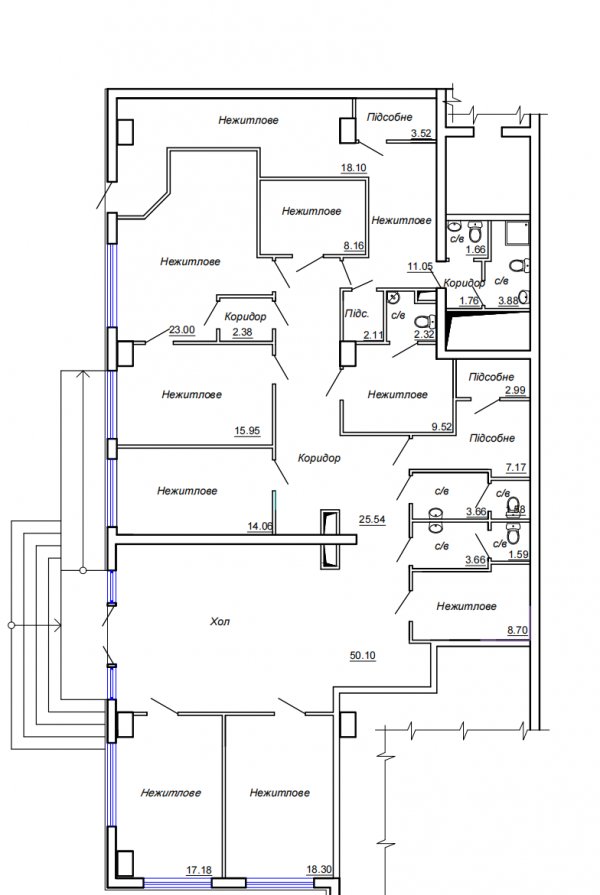
Одеса, Аркадия, Генуэзская улица, 001 • На мапі400 000 USD/
Площа200 м²
Поверх1 з 22
09051 Продаётся действующая стоматологическая клиника в Аркадии, с ремонтом и оборудованием. Площадь 200 кв. м.
ПоложенняЧастина житлової будівлі
Тип об'єктуПриміщення вільного призначення
Фасадний вхідТак
Тип будинкуНовобудова
Id оголошення716716

