продаж
Собственник! Отдельное здание кафе летняя площадка пр Шевченко
Одеса, Приморский, Шевченко проспект, 001 • На мапі250 000 USD/
0% комісіяПлоща190 м²
Поверх1 з 1
09213 Видео по запросу! Предлагаем кафе с летней площадкой, пер. Матросова /пр. Шевченко.
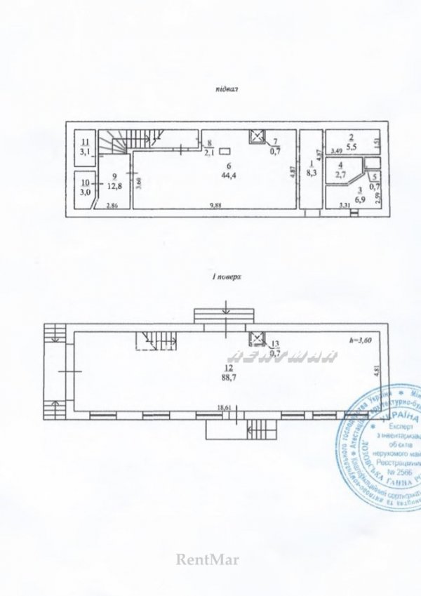
Отдельно стоящее здание.
Площадь 190 кв. м., в двух уровнях. 1-й этаж -зал, в полуподвале туалеты, раздевалка и кухня.
Большая летняя площадка - 60 посадочных мест.
В помещении - 40 посадочных мест
Электричество 50 Квт
ПоложенняОкремо стояча будівля
Тип об'єктуКафе
Фасадний вхідТак
Id оголошення755239










































